CASINO DU BRASSUS

Publié par moulaaw le

L’architecture moderne à Genève

CASINO DU BRASSUS

S’inspirer du passé pour se réinventer.

POLYSCÈNE puise dans la mémoire du lieu pour en proposer une lecture renouvelée. Les ouvertures préexistantes retrouvent une présence affirmée : elles s’étirent désormais jusqu’au sol, redonnant souffle et verticalité à la façade. L’apparition d’un balcon et la réinterprétation du crépi d’origine mettent en valeur les encadrements de fenêtres ainsi que les chainages d’angle en pierre, témoins du caractère patrimonial du bâti.

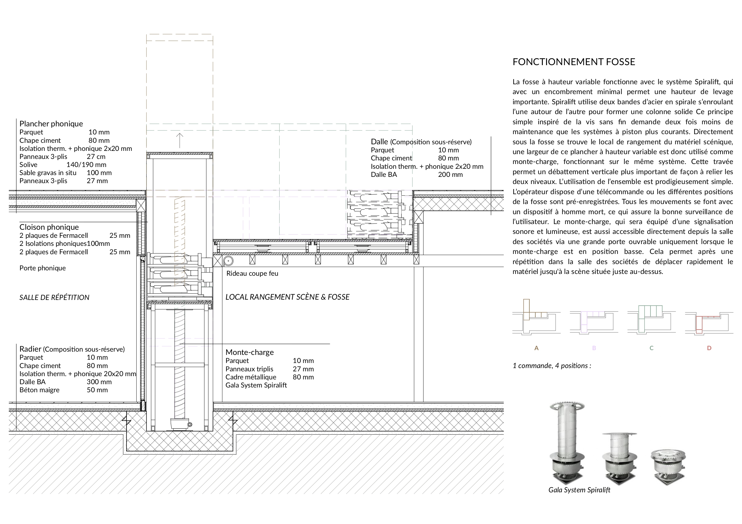
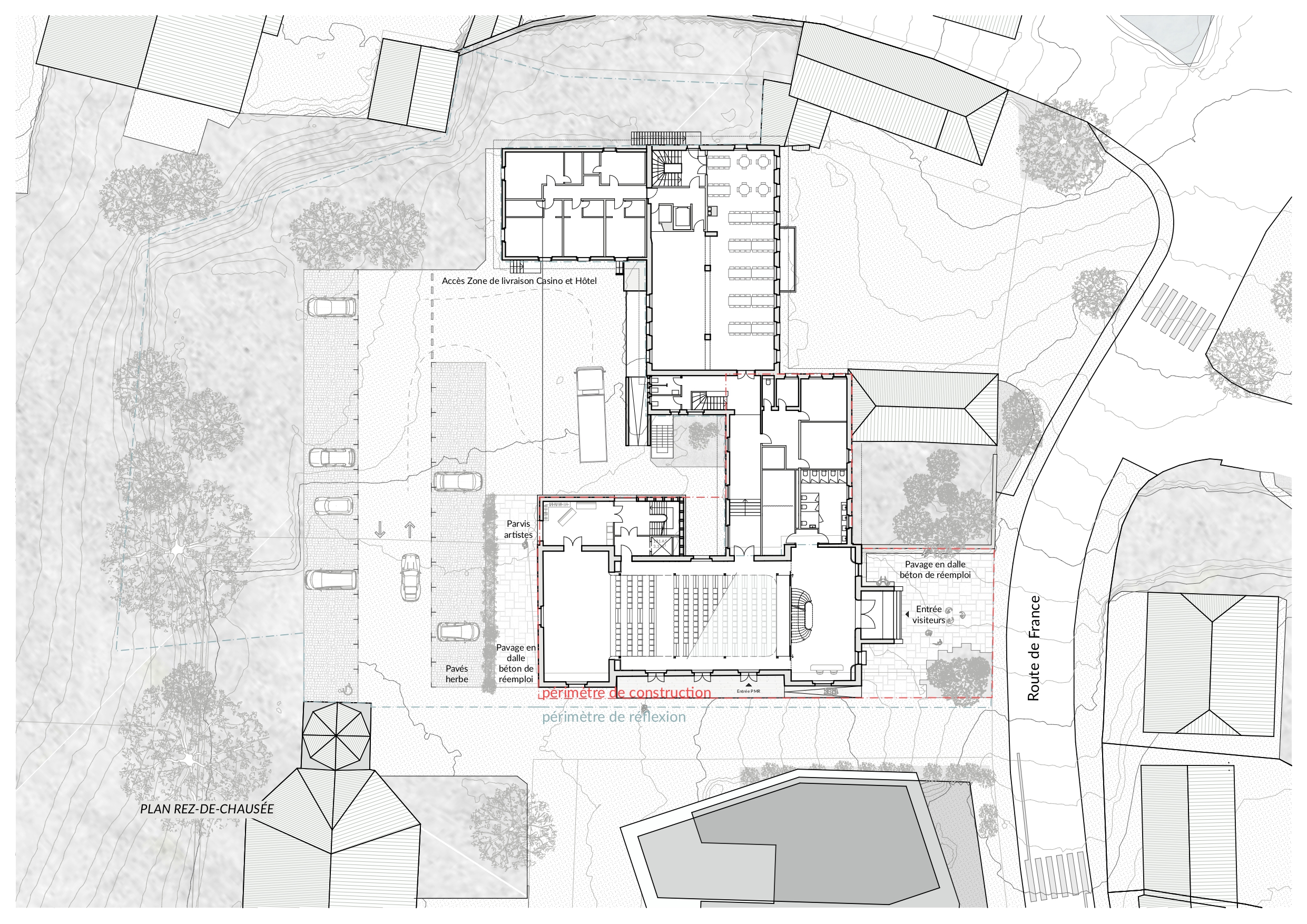
Le projet s’organise depuis le foyer, développé sur deux niveaux et relié par un escalier central qui distribue également les balcons. Ces derniers viennent couronner la salle principale, un espace désormais modulable, où scène et salle peuvent ne faire qu’un. Loin d’une configuration classique, une fosse à hauteur variable permet de multiples scénographies, offrant aux artistes comme au public une expérience renouvelée et évolutive.

Le parcours des artistes, pensé comme une séquence autonome, s’articule depuis l’extérieur jusqu’à la scène : préparation, échauffement, représentation. Cette circulation indépendante du public garantit fluidité́ et intimité́ des usages.

La rénovation du bâti repose sur une mise en œuvre rationnelle : chaque intervention nouvelle reprend le principe constructif en structure bois poteaux- poutres. Le parti architectural vise à préserver l’aspect traditionnel du bâtiment tout en répondant aux exigences contemporaines. Les tuiles solaires, choisies dans une teinte terracotta évoquant les couvertures anciennes, assurent la transition entre patrimoine et innovation. Enfin, le crépi, à la fois isolant et respectueux de l’esthétique d’origine, participe à la cohérence d’ensemble sans altérer l’identité́ du lieu.

CO Casino le Brassus Polyscène_page-0001
Catégories : Par défaut